
Ballast Point Brewing Company is a craft brewer in San Diego. The brewery has enjoyed increasing demand since its founding in 1996; the task of scaling production at the brewery however fell to Bill Sherwood, director of facilities, and Brandon Green, director of brewing, who together run operations.
BALLAST POINT’S NEEDS
Their rapid expansion meant moving to new facilities on a short time frame and upgrading output bottlenecks. They needed an ideal conveyance system for beer brewing.

“The pace that we have expanded has been our biggest challenge. We didn’t even own this building two and a half years ago,” says Brandon.
Additionally, total output wasn’t the only thing increasing but the number of varieties being brewed as well. This meant Bill and Brandon needed a tubular conveyor nimble enough to adjust for different recipes quickly.
“It can be hard for brewers who need to switch between malts with other traditional conveyor systems,” says John Eiting, MPE’s Director of Chain-Vey Sales. “Moving from an imperial stout to a delicate Kölsch requires a system that can transport precise amounts of malt for recipes and not leave residual grains in the system.” The worst case scenario being costly off-batches which don’t meet quality control standards.
By design the Chain-Vey’s durable wiper discs ensure virtually every grain of malt and flower of hops leaves the intended discharge points without chaff or residue left behind.

Chain-Vey’s durable wiper disc (installed in line with Quiet Pucks) ensures precise amounts of ingredients are conveyed without loss as was imperative for Ballast Point.

In addition to the cleanliness and reliability of the system, the Ballast Point project needed to meet exceptional engineering specifications.
“We used a tubular cable system for a while and we reached the limit of that,” says Bill Sherwood.
CHAIN-VEY’S SOLUTION

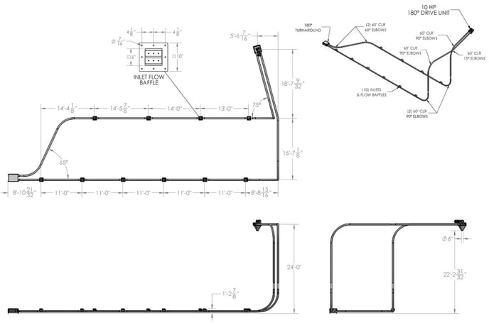
Chain-Vey 1 (Silos to Mill)
- Moves whole malted barley with a bulk density of 33-35 lb/ft3
- Max rate of 650 ft3/hr
- Carbon steel chain with split UHMW pucks
- Circuit length of 240 ft
- 4″ Schedule 10 stainless steel pipe

Chain-Vey 2 (Silos to Mill)
- Moves whole malted barley with a bulk density of 33-35 lb/ft3
- Max rate of 650 ft3/hr
- Carbon steel chain with split UHMW pucks
- Circuit length of 240 ft
- 4″ Schedule 10 stainless steel pipe

Chain-Vey 3 (Cleaner to Mill to Grist Case)
- Moves milled barley with a bulk density of 33-35 lb/ft3
- Max rate of 1,100 ft3/hr
- Carbon steel chain with split UHMW pucks
- Circuit length of 168 ft
- 5″ Schedule 10 stainless steel pipe

Chain-Vey 4 (Cleaner to Mill)
- Moves milled barley with a bulk density of 33-35 lb/ft3
- Max rate of 650 ft3/hr
- Carbon steel chain with split UHMW pucks
- Circuit length of 75 ft
- 4″ Schedule 10 stainless steel pipe

Chain-Vey engineers visited Ballast Point’s brewery to see the building up close and the existing facility layout. They designed and delivered a 4” Chain-Vey system running 360 ft in length and delivering 650 ft3/hr in conveyance capacity. The result was just as hoped for.
“All in all, we are really pleased,” says Brandon. “Chain-Vey has really allowed us to set it and forget it,” he added.
For smaller brewers, there is a 3″ diameter tubular drag conveyor which may be an ideal fit for smaller scale production.